Logo
k
i
Projektvorschaubild

BUE_111 / (IN) PLANUNG

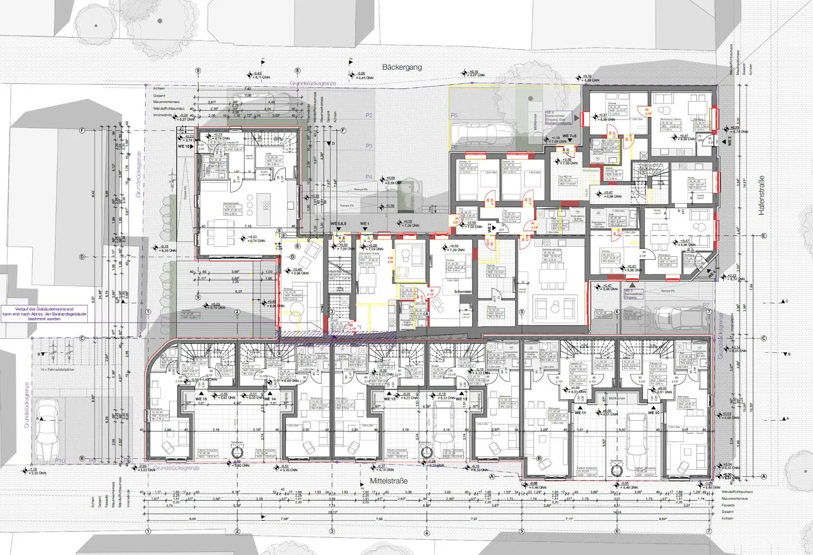
Neubau von 7 Stadthäusern
Umbau und Erweiterung einer alten Bäckerei
29 Wohneinheiten
Bauantrag, Genehmigung erteilt
LP 1-4

Hafenstrasse 6
Büsum

2019

Projektdetailbild
Projektdetailbild
Projektdetailbild
Projektdetailbild
Projektdetailbild
Projektdetailbild
Projektdetailbild
Projektdetailbild
Projektdetailbild